更新时间:2025-11-16 10:34点击:121
什么样的建筑最能体现我们华夏子民的风貌,我想大家心中的答案有且只有一个,那便是中式传统小院。
在自己的小院里喝茶聊天、读书看报,亦或是跟家人一起晒晒太阳,田园农耕,都是一种享受!
今天宅宅就给大家推荐4套中式传统小院,一起来看看吧。

占地尺寸:13.1m × 21.8m
占地面积:186.64㎡
建筑面积:186.64㎡
建筑高度:7.074m

厢房一改之前中式庭院的餐厨区,改为一间卧室,双面开窗,让老人能有一个安静、舒适的居住环境!
进深虽有20多米,但一半都是庭院,让您的住宅真正被绿色所包围。双开门厨房更适合农村实际情况,在户外杀鸡、处理蔬菜都不会把室内弄脏!


户型二:

占地尺寸:23.7m × 32.4m
占地面积:296.8㎡
建筑面积:534.92㎡
建筑高度:10.023m

超大面积庭院,让您在家里养鸡养鸭或者是种菜、种花都是非常的方便,也不用担心会影响到其他人。
户型不仅有车库、棋牌室还有农村特色的柴火厨房,让您重温儿时美好的回忆。
二层西北角设置书房,让您在看书学习或者是工作时不怕被其他人所打扰。
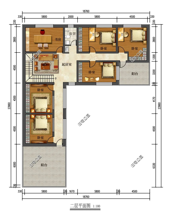
七间卧室除了满足一家人的日常居住需求外,还能让朋友在家过夜。两个阳台也是为生活增添了一份乐趣,一家人在阳台上晒晒太阳、吹吹风都是非常的惬意。


户型三:

占地尺寸:12.64m × 9.29m
占地面积:126.27㎡
建筑面积:252.55㎡
建筑高度:7.27m

前院虽小,但也是一种风景,在夏日的傍晚坐在这里吹吹晚风感受整个小院的风采。
南向书房拥有更好的采光,让您在此看书、办公更加便捷。客餐区一体化设计,南北通透,前后双开门,室内更加通透、明亮。
二层不仅有三间卧室还有一间榻榻米室,让家人拥有别样的居住生活体验。南侧贯通式大阳台,不管是晾晒、还是养花、种草都非常方便。


户型四:

占地尺寸:19.2m×11.68m
占地面积:234㎡
建筑面积:438.5㎡
建筑高度:10.535m

中式建筑注重风雅情趣,无风雅,不中式。一个外走廊,给予室内外合理的过渡空间,对称双花坛设计,姹紫嫣红间显露天地本色。
两间卧室呈对立设计,均为套房设计,强调以人为本的生活理念。
公共区域摆放沙发茶几,便是最好的会客交友空间;再来一张球桌,生活也要加一点趣味,这才不枯燥。

